
盖斯米流体科技有限公司 是一家专业生产各种阀门的生产企业,产品有球阀,闸阀,截止阀止回阀等,我们为广大客户提供优质的Z47WF型 燃气闸阀 产品。我们愿以先进的设计和制造、用户至上的服务意识,为广大用户提供优质的产品,满意的服务!
专业服务:
销售热线:18989767853
图文传真:0577-67977783
电子邮件:77413583@qq.com
在线服务:
【产品用途】
Z47WF 燃气闸阀(无泄漏燃气平板闸阀)专用于天然气、液体石油气煤气、油品等,它以独特的设计、新颖的结构和良好的密封性能彻底解决了阀门因燃气结焦而引起的关不严、开不动等问题,有效地提高了密封性能和使用寿命,真正达到零泄漏。
【产品特点】
1. 阀体采用铸造结构。
2. 阀座采用O 形密封圈密封和施加预紧力的浮动阀座结构,使阀门进出口双向密封;并且该结构的启闭力矩仅为普通阀门的1/2,能达到轻松开、关阀门。
3. 阀座采用密封面上镶嵌PTFE,具有PTFE 对金属和金属对金属的双重密封,PTFE 密封面同时清除闸板脏物的作用。
4. 阀门的闸板,无论是全开或是全关始终与密封面吻合,密封面得到保护不受介质直接冲刷,从而延长使用寿命。
5. 阀门在全开时,通道平滑为直线,流阻系数极小,无压力损失,可通毛球清扫管线。
6. 阀门关闭时能自动卸掉内腔高压(详见工作原理图),保证使用安全。
7. 采用封闭齿轮转动启闭指示机构,能长期清晰地反映阀门的启闭情况。
8. 直埋式阀门外表面采用环氧煤沥青防腐处理,能与管线同寿命。
【产品执行标准】
设计与制造:API 600
法兰尺寸:ANSI B16.5
结构长度:ANSI B16.10
压力~温度:ANSI B16.34
检验与试验:API 598
【产品性能规范】
| 压力等级 | 常温试验压力(MPa) | 适用温度 | 适用介质 | |||||
| 壳体试验 | 左密封 | 右密封 | 低压气密封 | 普通型 | 抗硫型 | |||
| 公称压力 | 1.6 | 2.4 | 1.76 | 1.76 | 0.6 | -29~121℃或按用户要求 | 石油、天然气、水等非腐蚀性介质 | 含H2S、Co2的石油、天然气、水等腐蚀性介质 |
| 2.5 | 3.75 | 2.75 | 2.75 | 0.6 | ||||
| 4.0 | 6.0 | 4.4 | 4.4 | 0.6 | ||||
| 6.4 | 9.6 | 7.04 | 7.04 | 0.6 | ||||
| 磅级(Lb) | 150 | 3.0 | 2.2 | 2.2 | 0.6 | |||
| 300 | 7.5 | 5.5 | 5.5 | 0.6 | ||||
【产品零部件材质】
| Z47WF 燃气闸阀主要零件材质 | ||
| 序号 | 零件名称 | 材料 |
| 1 | 排污堵头 | 25 |
| 2 | 阀体 | WCB |
| 3 | 闸板 | 16Mn+ENP |
| 4 | 阀座 | 16Mn |
| 5 | O形圈 | NBR |
| 6 | 密封圈 | PTFE |
| 7 | 阀杆螺母 | ZQAL9-4 |
| 8 | 阀杆 | 1Cr13 |
| 9 | 垫片 | 柔性石墨+1Cr18Ni9 |
| 10 | 阀盖 | WCB |
| 11 | 双头螺柱 | 35CrMo |
| 12 | 螺母 | 45 |
| 13 | O形圈 | NBR |
| 14 | 轴承 | 组件Package |
| 15 | 对开环 | 45 |
| 16 | 内六角螺钉 | 35 |
| 17 | 键 | 45 |
| 18 | 开关指示器 | PTFE+1Cr18Ni9 |
| 19 | 手轮 | Q235A |
| 20 | 螺母 | 35 |
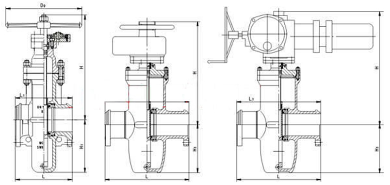
【产品外形和连接尺寸】
| Z47WF 燃气闸阀主要外形和连接尺寸 | |||||||||||||||
| DN | NPS | 法兰 | 对焊 | 手动 | 齿动 | 齿动装置 | 电动 | 电动装置 | |||||||
| L | L1 | H | H1 | D0 | H | H1 | D0 | H | H1 | D0 | |||||
| 25 | 1 | 165 | - | 85 | 228 | 180 | - | - | - | - | - | - | - | - | |
| 32 | 11/4 | 165 | - | 103 | 231 | 180 | - | - | - | - | - | - | - | - | |
| 40 | 11/2 | 178 | - | 115 | 240 | 250 | - | - | - | - | - | - | - | - | |
| 50 | 2 | 178 | 216 | 130 | 255 | 250 | - | - | - | - | - | - | - | - | |
| 65 | 21/2 | 190 | 241 | 160 | 355 | 300 | - | - | - | - | - | - | - | - | |
| 80 | 3 | 203 | 283 | 180 | 360 | 300 | - | - | - | - | - | - | - | - | |
| 100 | 4 | 229 | 305 | 214 | 400 | 300 | - | - | - | - | - | - | - | - | |
| 125 | 5 | 254 | 381 | 257 | 460 | 350 | - | - | - | - | - | - | - | - | |
| 150 | 6 | 267 | 403 | 300 | 500 | 350 | - | - | - | - | - | - | - | - | |
| 200 | 8 | 292 | 419 | 388 | 570 | 350 | - | - | - | - | - | - | - | - | |
| 250 | 10 | 330 | 457 | 475 | 680 | 400 | 475 | 700 | 350 | 0型 | 475 | 710 | 500 | SMC-03 | |
| 300 | 12 | 356 | 502 | 547 | 750 | 450 | 547 | 870 | 350 | 0型 | 547 | 880 | 305 | SMC-00 | |
| 350 | 14 | 381 | 572 | 625 | 875 | 450 | 625 | 995 | 450 | 1型 | 625 | 1015 | 305 | SMC-00 | |
| 400 | 16 | 406 | 610 | 712 | 1000 | 500 | 712 | 1120 | 450 | 1型 | 712 | 1130 | 305 | SMC-00 | |
| 450 | 18 | 432 | 660 | 785 | 1130 | 500 | 785 | 1280 | 450 | 1型 | 785 | 1360 | 305 | SMC-0 | |
| 500 | 20 | 457 | 711 | 880 | 1200 | 600 | 880 | 1350 | 450 | 1型 | 880 | 1430 | 305 | SMC-0 | |
| 600 | 24 | 508 | 813 | 1045 | 1420 | 800 | 1045 | 1570 | 500 | 2型 | 1045 | 1650 | 305 | SMC-1 | |
| 700 | 28 | 610 | 914 | 1190 | 1650 | 800 | 1190 | 1800 | 500 | 2型 | 1190 | 1910 | 305 | SMC-1 | |
| 800 | 32 | 660 | 914 | 1360 | 1880 | 1000 | 1360 | 2040 | 500 | 2型 | 1360 | 2140 | 305 | SMC-1 | |
| 900 | 36 | 771 | 1016 | 1510 | 2100 | 1000 | 1510 | 2280 | 600 | 3型 | 1510 | 2390 | 458 | SMC-2 | |
| 1000 | 40 | 811 | - | 1715 | 2300 | 1200 | 1715 | 2480 | 600 | 3型 | 1715 | 2590 | 458 | SMC-2 | |
